你的瀏覽器已禁用javascript,請啟用javascript,否則網頁將非正常運行!






      91看片看黄,91免费看片APP,91看片最新地址,91看片免费入口

      成都商用91免费看片APP工程公司告訴你醫院91免费看片APP設計細節

      發布人: 四川優百特91免费看片APP設備公司 發布時間:2020.04.09

        醫院是給病人治病的地方,所以醫院91免费看片APP承擔著為醫生和病人提供餐飲服務的任務。但是,由於醫院是特殊的場所,所以,醫院的91免费看片APP在設計上麵也有其特殊性。那麽,在設計醫院食堂91免费看片APP時,應該考慮哪些因素呢?又應該配置哪些設備呢?作為專業的成都商用91免费看片APP工程公司,現在91看片看黄就和大家分享相關的知識。


        作為成都商用91免费看片APP工程公司,91看片看黄認為要設計醫院91免费看片APP可以考慮以下幾個方麵:


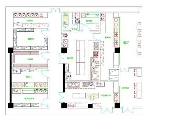
        一、醫院食堂91免费看片APP設計方案

        在設計醫院食堂91免费看片APP設計圖時,應充分考慮以下幾個方麵:隻有在充分考慮設計方案的情況下,才能使後期的醫院食堂暢通,隻有醫生和病人才能讓醫生和病人出院。並且為患者的家人提供更好的膳食。


        1、通風性:一般設計排氣量為油煙排風設備,按80%的排風設計補充風量。此外,還要考慮合理的房間通風。隻有醫院食堂通風良好,才能讓醫院食堂廚師發揮得更好。


        2、91免费看片APP地板:91免费看片APP地板必須使用防滑磚,在選擇新穎實用的防滑磚之前,使用紅鋼磚仍然是一個有效的舉措。


        3、用水明溝:91免费看片APP排水溝不應太淺,明渠表麵應平整,高低無差別,做好露溝地麵下的有機連接,做好排水溝末端防老鼠的工作。


        4、91免费看片APP燈光:91免费看片APP燈光要實用,熱菜加工要用足夠的光來處理,以把握菜肴色澤,案板切配要有明亮的燈光,為了有效防止刀傷和追求精細的刀工,出菜找荷要有充足的燈光,減少混入餐廳和流入餐廳的碎片數量。


        二、醫院食堂91免费看片APP設計功能間的介紹


        粗加工區:為滿足衛生要求,對原料分別進行清洗和切割,不得與91免费看片APP其他區域交叉。

            

        操作間:操作間是最集中的地方,小炒、蒸菜、燉菜、炸製類菜品、湯類均在此間製作。為此,其主要配置為用於炒菜的烹調範圍、用於存儲原料的冰箱、以及用於存儲調味盤的桌櫃。由於來訪病人的用餐時間不統一,又都以粥類等流食為主要食物,故此間設置有煲仔爐,方便在做份量較少的食物時使用。


        回民操作間:醫院病人隨處可見,所以91看片看黄需要考慮少數民族的飲食習慣,所以設置回民操作間,以滿足少數病人對食物材料的特殊需求。


        三、醫院食堂91免费看片APP設計規範


        醫院食堂對場所要求非常嚴格,因為醫院是一個非常幹淨的場所,衛生標準高於其他地方。


        1、不應在幹燥地形、給排水條件和供電地區選擇汙染易發地區。


        2、應遠離排泄物、汙水槽、垃圾站。


        3、醫院附近不得有有害氣體、放射性物質和其他擴散汙染源。


        以上幾點就是91看片看黄整理的關於醫院91免费看片APP設計的相關知識,希望能夠對大家啊有用。


        本文內容由四川91看片看黄91免费看片APP設備公司提供,部分圖片和文字或來自網絡,如涉及知識產權請於成都91免费看片APP設備公司91看片看黄聯係。如需轉載本文,請與有商用91免费看片APP工程經驗的老牌91免费看片APP設備廠91看片看黄網站管理員聯係。若需獲取更多商用91免费看片APP設備、酒店91免费看片APP設備、不鏽鋼廚具產品信息,歡迎各位來電來函,91看片看黄將與大家共同分享行業資訊。






      分享這個產品

      產品展示
      成功91看片免费入口
      
      網站地圖